












Similar Products
Top_corner_cap .jpg
Bottom_corner_cap.jpg
Top_straight_cap.jpg
G2G_clamp.jpg
Short_metal_handle.jpg
Short_wooden_handle .jpg
Knob_handle.jpg
Long_wooden_handle.jpg
Square_handle.jpg
Cutout_handle.jpg
Assembly_instructions_Vetro_Sauna_S51.pdf
Cube_knob_handle.jpg
Vetro S51
Sauna glass wall with window on handle side and hinge side and above door
The product is suitable for sauna space division. The door does not have any frames, the hinges are mounted directly to the side window on the hinge side and the building wall below it. The side panels add light and the feeling of spaciousness to the space.
The hinges have a turning range of 90 degrees in both directions and are equipped with adjustable centring that aims to return the door into its opened and closed positions.
Upper windows or side glasses profiles are manufactured of stainless steel. Profiles are coated according to frame color selection and made accurately according to measures (no need to cut on-site). The profiles are additionally equipped with link- and corner caps for a perfected finish and easy adjustment.
The door is mounted with hinges fastened directly to the building wall and to the side window above it by fastening the hinges tightly to the glass. The upper windows are mounted with stainless steel profiles on the top, to which the glass is glued. The steel profiles are delivered precision cut to the exact lengths and supplied with corner- and link caps for perfecting the finish and allowing for some room of adjustment. The upper glass is secured to the walls with the help of glass clamps. All side panels are mounted with stainless steel profiles framing the outer edges of the glasses, to which the glasses are glued. When mounting full high side panels glass clamps are used on the bottom. Please note that the hinges should be re-tightened after approximately one week of use, due to the heat affecting the placing of the hinge the few first times of use. The re-tightening is done by tightening the hex-screw on the glass-side as tight as possible. The responsibility of doing the tightening is always the end users
20 Working days
20 year warranty
All metallic fittings are manufactured from brass alloy. Surface treatment options are Chrome plated, Brass and Black painted. The handle is by choice either chrome plated, brass, black painted brass alloy or unfinished alder. Glass mounting profiles are made of stainless steel with provided link-/cornerparts in the same color. Profile color matches the selected surface treatment option.
The product is manufactured of 8mm thick tempered safety panel (EN 12150). Clear and smoke are smooth surfaced and transparent panels
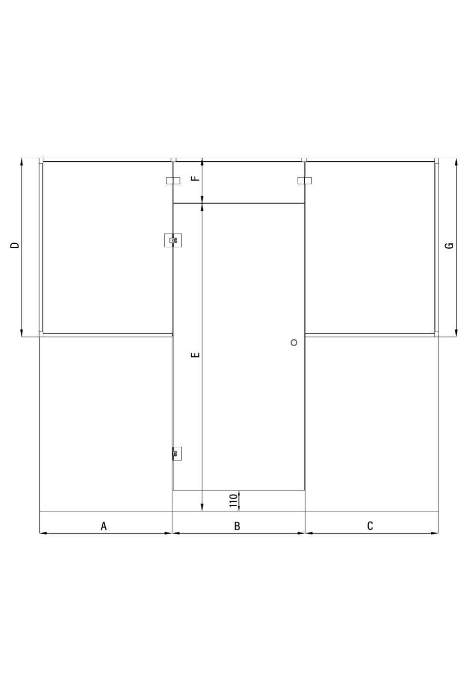
The size of the shower door can be selected from the standard dimensions (700/800/900 x 2000) or it can be manufactured by special dimensions; the upper and the side panels are always manufactured by special dimensions. When selecting the size of the door and the upper panel, the width is the width of the installation opening and the height is the height of the panel pane. When dimensioning the height of the installation opening of the door, a 5mm reserve is automatically left at the top edge of the panel and a 110mm reserve is left at the bottom edge. When selecting the side panels, the width and the height are the width and the height of the installation opening. Installation and adjustment ranges are included automatically in the dimensioning of the panel panes of the side panels.If the size of the door exceeds 1.7m2 an additional hinge is necessary to provide additional support.
Product size
The selected product can be installed into the opening the total width L1 of which is 2700mm and the total length L2 2250mm.:

The door stopper is manufactured from chromed brass alloy. It can be used to cushion the closing of the door and is installed to the edge of the fixed glass.
The round metal handle and the short metal handle are manufactured from chromed brass alloy. The short wooden handle is unfinished alder. Out of handle options, the round metal handle and the short wooden handle are also well-suited for use on a sauna door. If the size of the door exceeds 1.7m2 , please select the handle option with additional hinge.
Product
Product code
Price
1
Vetro S51
Product code
S51-21-0000
Price
0.00 €
2
Glass door
Chrome/Transparent=800 x 1885
Product code
160 21 0000
Price
472.00 €
3
Hinge side panel
Chrome/Transparent=900 x 700
Product code
174 21 0000
Price
220.00 €
4
Handle side panel
Chrome/Transparent=1000 x 700
Product code
173 21 0000
Price
210.00 €
5
Upper glass
Chrome/Transparent=800 x 250
Product code
163 21 0000
Price
147.00 €
6
Maintenance guide
=
Product code
059 RL MMMM
Price
0.00 €
7
Installation instructions
=
Product code
8/25 6KRLM
Price
0.00 €
8
Round metal knob
Product code
883 21 0000
Price
0.00 €
9
FLASH SALE -25% 23.01-25.01
Product code
DISCOUNT
Price
-262.25 €
10
TOTAL
Product code
Price
786.75 €
The selected product can be installed into the opening the total width L1 of which is 2700mm and the total length L2 2250mm.:
| EAN: | 6418379996093 |
|---|



